Форумы: Саровские новости 
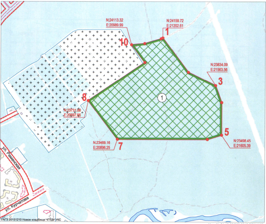
Последние на форуме:Новости: "В Сарове начнут лечить рак": федеральные сми сообщают об установке "Аргус-М"02 фев’24, 20:14 Новости: В Сарове заработал «Донорский светофор» 15 янв’24, 10:20 Новости: Центры выдачи конфет: Новогодние подарки "домашним" детям раздадут 23 декабря 25 дек’23, 12:34 Новости: Лёд приобрел слоистую структуру 31 мая’23, 08:29 Новости: Места выгула собак: Город построит загоны для игр и тренировок питомцев 05 мар’23, 10:14 Новости: Прапрапрапраправнучка: Потомки Серафима Саровского посетили Дивеево 19 янв’23, 19:01 Новости: Новый дивизион: Во главе Ледового встал генерал-майор Мингалеев 27 июл’22, 10:53 Новости: "От заката до восхода": Саксофонист из ЗАТО сыграл соло в аналоге Playing for Change 23 июл’22, 20:36 Новости: Обновленный генплан Сарова: был опубликован устаревший файл 15 фев’22, 21:27 Новости: В ворота на байдарке: Саровчане поплавали между двумя мостами 18 окт’21, 18:31 Экономные счетчики Меркурий (без доработки) 24 сен’21, 10:04 Новости: Убийство боксёра: ФСБ не пускала ранее судимого в Саров 23 авг’21, 23:42 Новости: Есть химия: Директором четырнадцатой школы стала зам из лицея 22 авг’21, 23:09 Новости: Капитальный балл: Опубликован список домов, ждущих ремонта 22 июн’21, 21:21 Новые результаты ЕГЭ: Средний балл за русский язык в Сарове вырос 18 июн’21, 15:31 Все темы форума » | Новости: Четыре гектара с востока: Новое кладбище начнут строить летомНовости - 17 июн’16, 22:38Первая очередь нового кладбища будет оформлена к 1 ноября 2016 года, что обойдётся городу в 16 млн рублей. Перейти »
НаписатьЕсли вы хотите ответить кому-то, нажмите ссылку "Ответить" под его комментарием. Другие советы | Новая тема |


